123 Randolph Avenue_UPD 13.03.2024 (dragged)-pdf (2)

27.05.2024

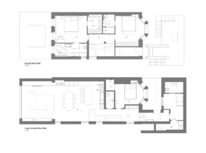
Plans with furniture